Kitchen Layout berfungsi untuk menentukan tata letak & alur produksi makanan serta minuman. Pembuatan kitchen layout oleh D’Trust akan memaksimalkan luas dapur dengan peralatan yang dibutuhkan. Setiap dapur memiliki karakteristik & kebutuhan yang berbeda, sehingga diperlukan konsultasi custom kitchen layout.
Dengan D’Trust semua bentuk dapur dapat dimaksimalkan dengan design layout yang tepat & sempurna.
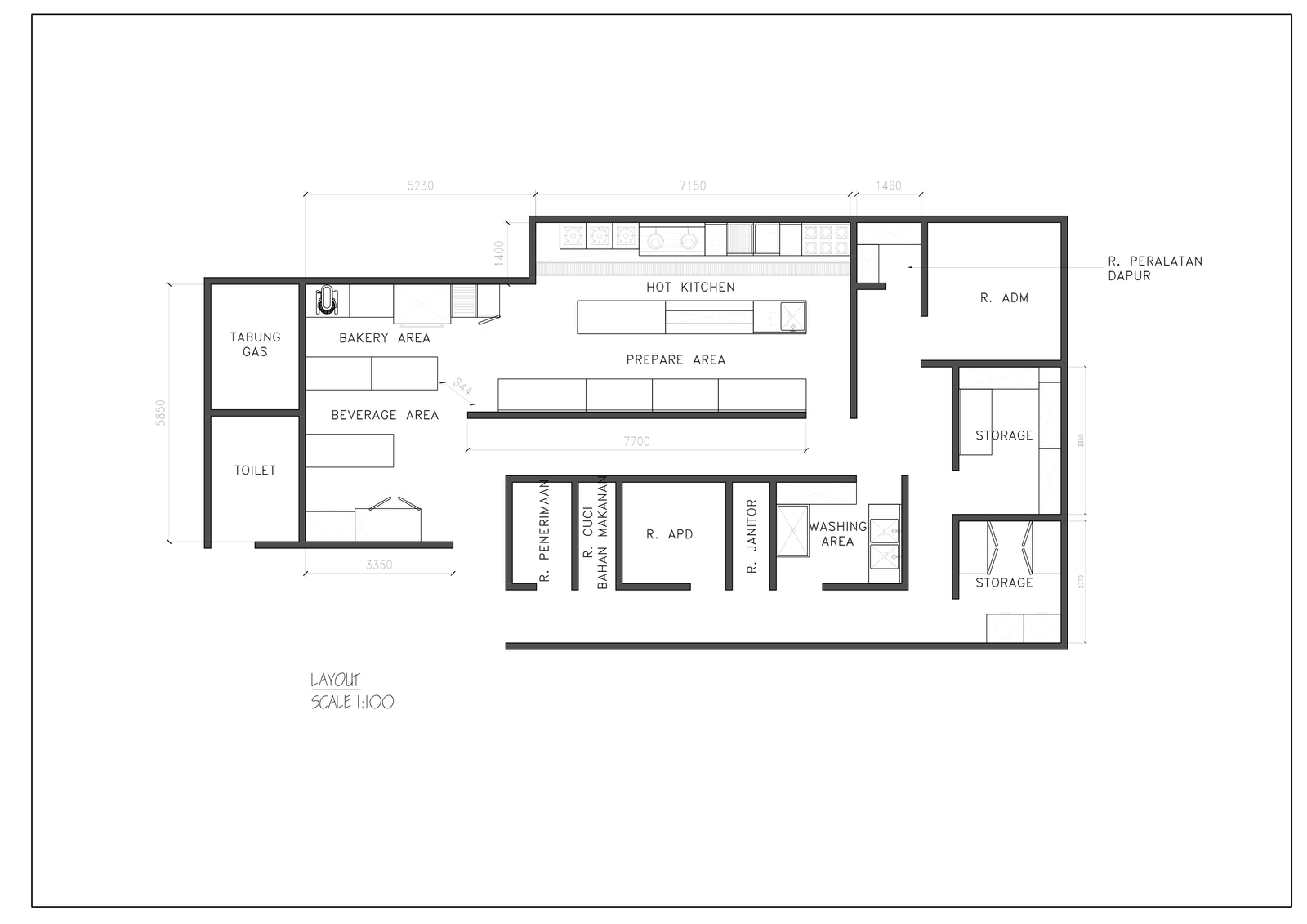
Contoh 1 Layout Blueprint Kitchen
Sketsa Layout & Detail Produk (Click to Zoom)
Keterangan:
| Tipe Layout | Layout Kitchen |
| Luas Area Kitchen | 41m2 |
| Perkiraan Biaya | Rp. 140 Juta |
| Proses pengerjaan | 1 Bulan |
| Lokasi Pengerjaan | Purwakarta |
| Tahun Pengerjaan | 2021 |
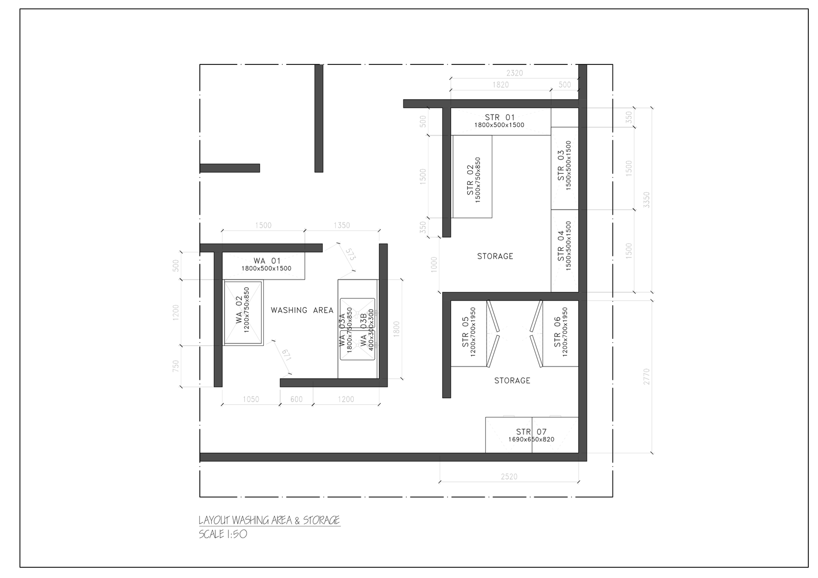
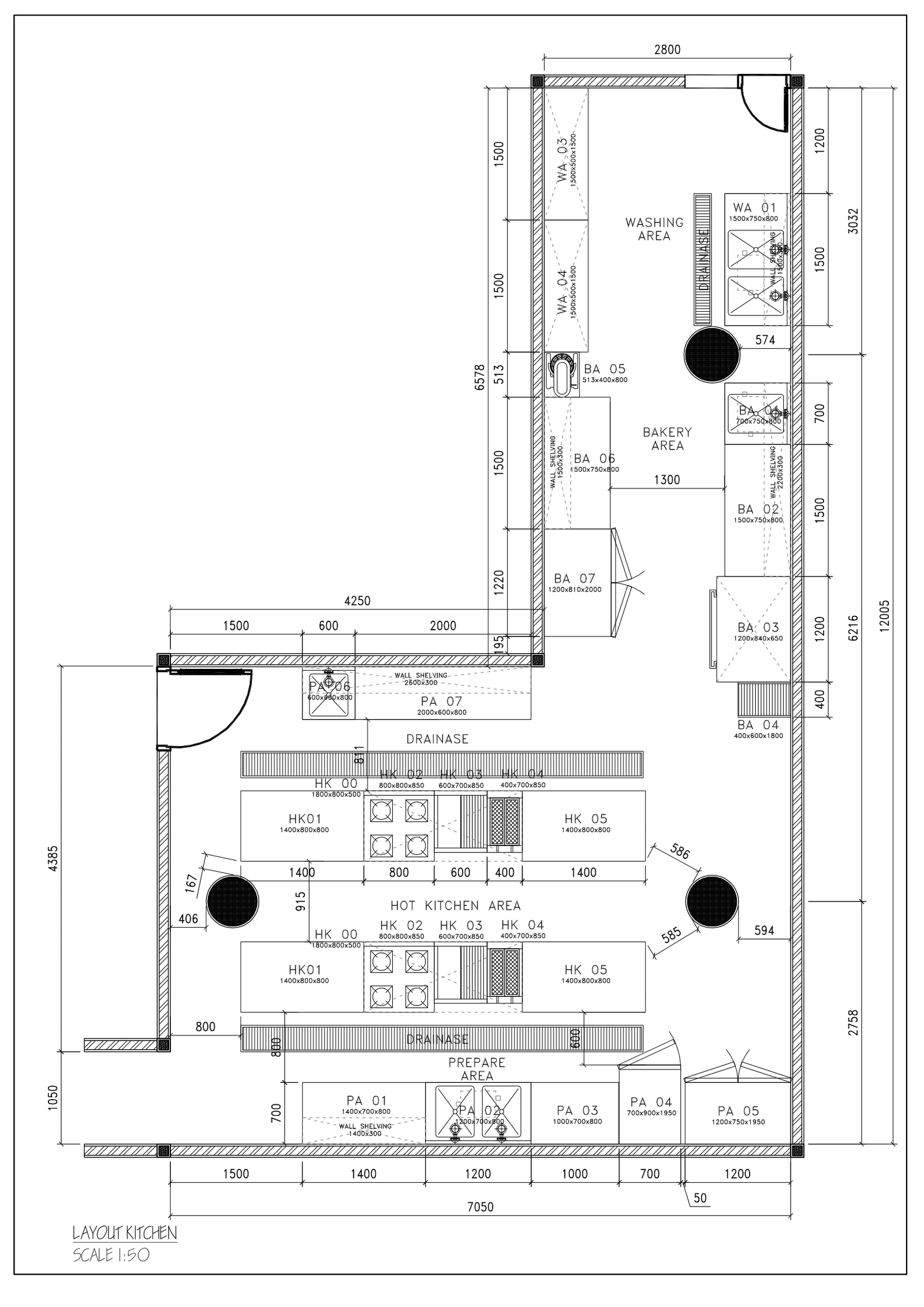
Contoh 2 Layout Blueprint Kitchen
Sketsa Layout & Detail Produk (Click to Zoom)
Keterangan:
| Tipe Layout | Layout Kitchen |
| Luas Area Kitchen | 75m2 |
| Perkiraan Biaya | Rp. 90 Juta |
| Proses pengerjaan | 2 Minggu |
| Lokasi Pengerjaan | Bandung |
| Tahun Pengerjaan | 2021 |


































