Kitchen Layout Hotel yang dibuat oleh D’Trust telah disesuaikan dengan kebutuhan hotel dengan mempertimbangkan: eficiency, safety & elegance. Pembuatan kitchen layout hotel akan dikerjakan langsung oleh D’Trust Hotel Kitchen Team.
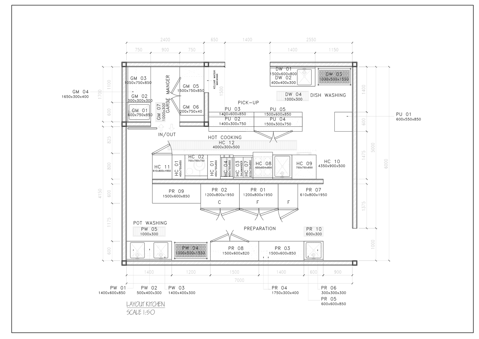
Contoh 1 Layout Blueprint Kitchen Hotel
Sketsa Layout & Detail Produk (Click to Zoom)
Keterangan:
| Tipe Layout | Layout Kitchen Hotel |
| Luas Area Kitchen | 29m2 |
| Perkiraan Biaya | Rp 320 Juta |
| Proses pengerjaan | 2 Bulan |
| Lokasi Pengerjaan | Bandung |
| Tahun Pengerjaan | 2022 |
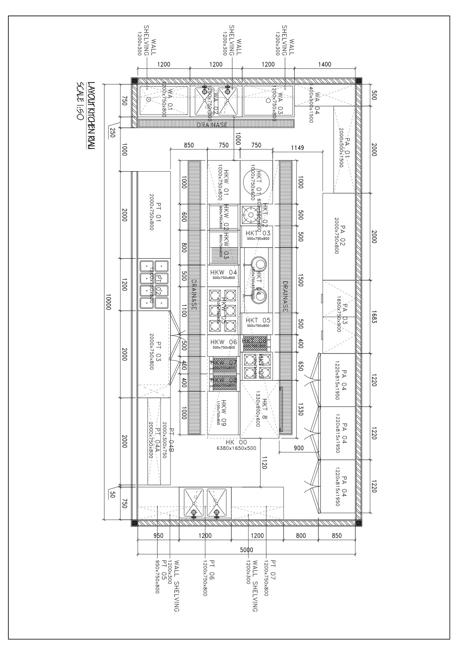
Contoh 2 Layout Blueprint Kitchen Hotel
Sketsa Layout & Detail Produk (Click to Zoom)
Keterangan:
| Tipe Layout | Layout Kitchen Hotel |
| Luas Area Kitchen | 50m2 |
| Perkiraan Biaya | Rp 400 Juta |
| Proses pengerjaan | 1 Bulan |
| Lokasi Pengerjaan | Pekanbaru |
| Tahun Pengerjaan | 2020 |































