Kitchen Layout berfungsi untuk menentukan tata letak & alur produksi makanan serta minuman. Setiap dapur memiliki karakteristik & kebutuhan yang berbeda, sehingga diperlukan konsultasi custom kitchen layout. Pembuatan kitchen layout cafe akan dikerjakan langsung oleh D’Trust Cafe Kitchen Team.
Kitchen Layout Cafe yang dibuat oleh D’Trust dapat meliputi dapur hingga ke bar area. Pembuatan kitchen layout oleh D’Trust akan memaksimalkan luas area produksi cafe dengan peralatan yang dibutuhkan.
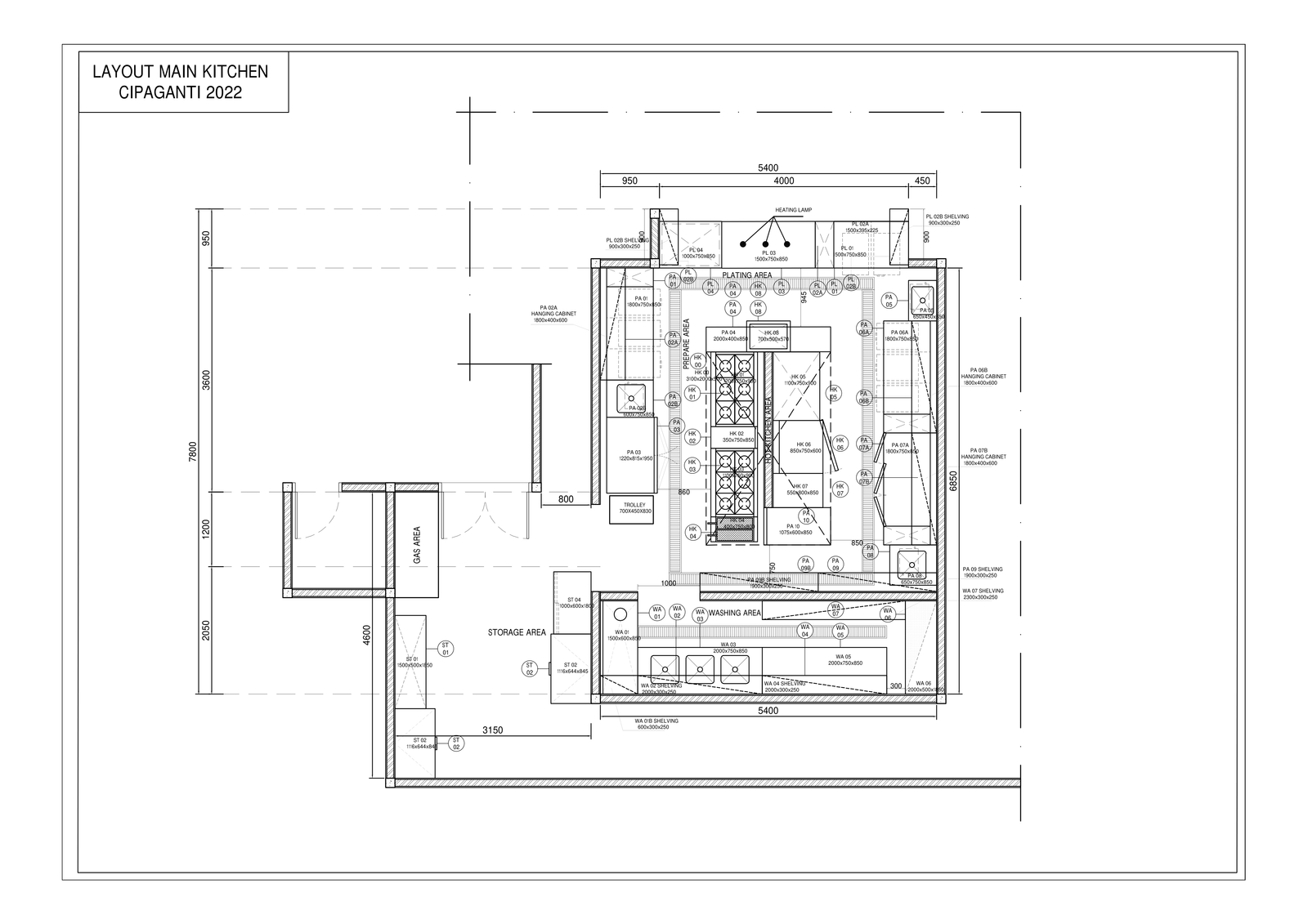
Contoh 1 Layout Blueprint Kitchen Cafe
Sketsa Layout & Detail Produk (Click to Zoom)
Keterangan:
| Tipe Layout | Layout Kitchen Cafe |
| Luas Area Kitchen | 36m2 |
| Perkiraan Biaya | Rp. 1,3 Miliar |
| Proses pengerjaan | 3 Bulan |
| Lokasi Pengerjaan | Bandung |
| Tahun Pengerjaan | 2022 |
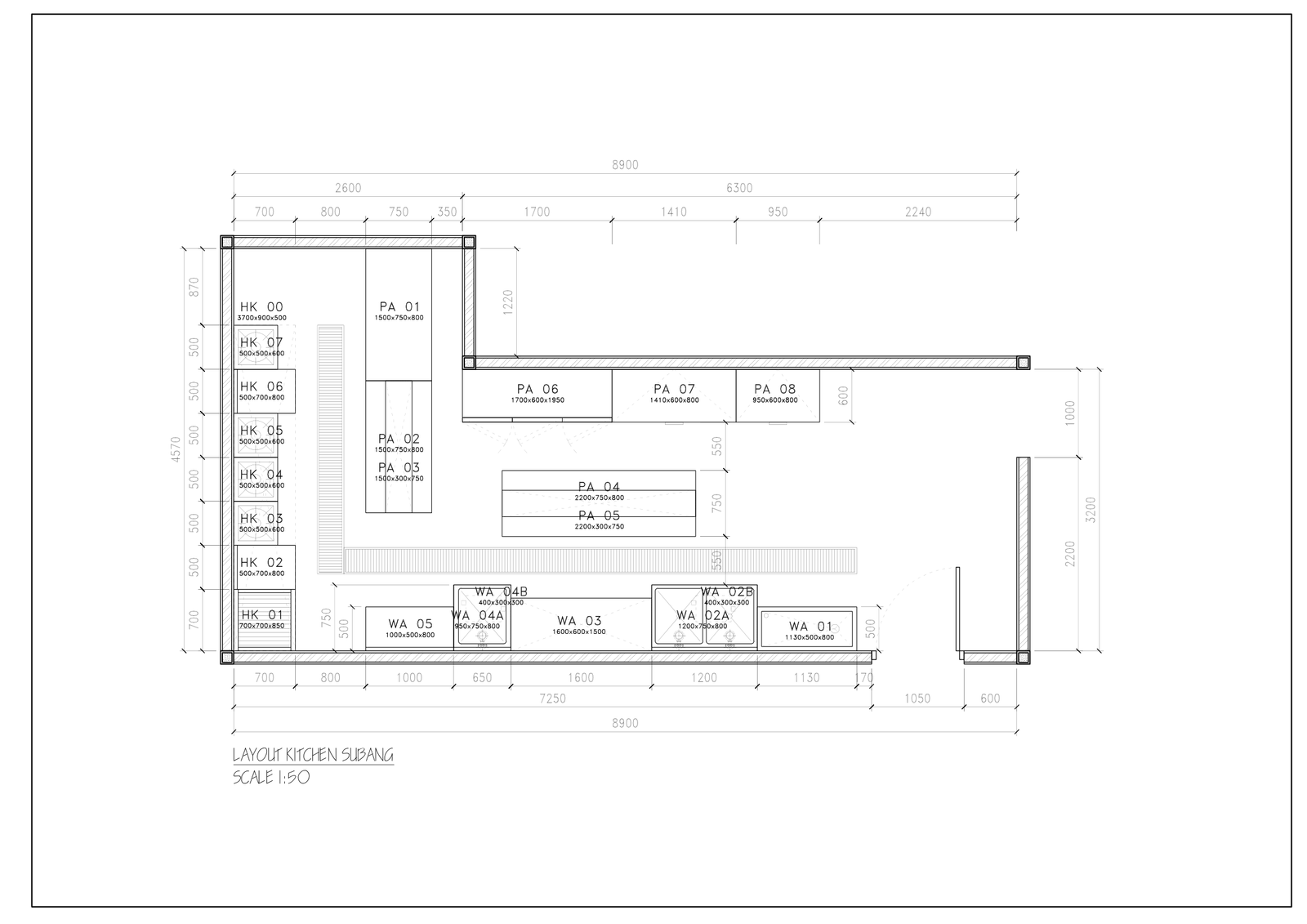
Contoh 2 Layout Blueprint Kitchen Cafe
Sketsa Layout & Detail Produk (Click to Zoom)
Keterangan:
| Tipe Layout | Layout Kitchen Cafe |
| Luas Area Kitchen | 40m2 |
| Perkiraan Biaya | Rp. 60 Juta |
| Proses pengerjaan | 3 Minggu |
| Lokasi Pengerjaan | Subang |
| Tahun Pengerjaan | 2021 |































